重慶廚房設備生產廠家告訴你商用廚房布局和設計的實用知識
發布人: 四川優佰特廚房設備公司 發布時間:2022.11.07
一般來說,商用廚房的設計和廚房設備和空間布局都是放在一起做的。商用廚房設計不但需要規劃廚房的空間,還需要考慮廚房動線的合理線路以及廚房設備的擺放等。因此,商用廚房設計是非常專業而且復雜的事情。那么,我們在設計商用廚房時,都需要那些實用知識呢?如何才能把讓商用廚房更加的滿足實際需要呢?不少重慶的朋友就在咨詢這些問題。雖然我們不是重慶廚房設備生產廠家,但是,作為長期在重慶做項目的廚房設備廠家,我們現在就根據自己的知識和大家分享。
作為專業的廚房設備生產廠家,我們認為,在設計商用廚房時,以下這些專業知識是我們必須掌握的:
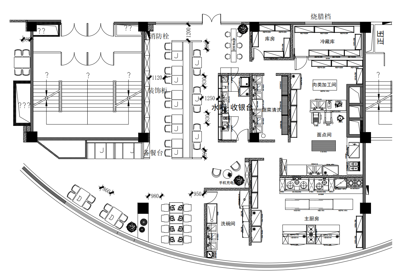
廚房餐廳設計方案生產工藝流程順暢,合乎通常生產工藝流程:取貨貯藏的區域→原材料粗加工→精加工及主要食品副食品熱加工(烹調)→售餐室→洗餐室。
備餐間獨立設定,與熱廚間和餐飲包廂的間距尤其近。食堂和飯館緊挨著,與餐飲在一個平面上,間距很近。各個職能間均根據餐飲供餐人數和菜品的位置而定,不可隨意合并或放棄,各工作點之間聯系緊密,流程順暢,設計方案布局合理。每一個工作點都不是多余的,而且離得更近,能夠大大節省勞動,提高工作效率。
其次,涼菜間是獨立設定的,在進入涼菜間之前需要加一個預進室,保證衛生。
清潔區——副食品熱加工間、主要食品加工間、涼菜間、配餐間,與污染區——蔬菜粗作業區、肉類粗作業區、倉庫和洗消室,均有明顯間隔,無交叉污染。合乎有關衛生標準的有關規定。
各功能間面積分布不一,副食品熱切加工間和主要食品制做區,這兩個主要操作間占用的面積較大,給工作人員留下了充足的工作空間,也方便餐廳廚房后期擴展,如開發特色小吃間、特色炒菜間等。
有一些機器設備能夠共亨,例如副食品熱作業區的臺冷凍柜和主要食品制做區的臺冷凍柜能夠共亨,涼菜間外設的臺冷凍柜和備餐間能夠共亨,而且還有許多備用電源設定,既能滿足現有電器的使用,又能為以后的電器設備添置電源。
以上這些就是我們整理的商用廚房設計和布局的一些實用知識,希望對大家能夠有所幫助。
上一個產品:餐飲廚房設備公司告訴你開餐館需要那些廚房...
下一個產品:大型商用廚房設備廠家告訴你商用廚房設備的...







